RXMH2型大容量繼電器的安裝尺寸及原理-上海上繼科技有限公司
發表時間:2019-06-17 15:21 瀏覽次數:1127 〖返回〗
一、RXMH2型大容量繼電器的用途
該繼電器用于工業自動化控制及電力系統二次回路中,作為中間輔助和擴大控制范圍之用 。
二、RXMH2型大容量繼電器的優勢
1觸點數量多達8付,斷開容量大。
2線圈激勵分直流和交流二種 。
三、RXMH2型大容量繼電器的原理
RXMH2大容量中間繼電器為電磁式繼電器。由電磁系統,接觸系統及支架三部分組成。電磁系統采用直動式結構,工作行程較大。 接觸系統采用橋式觸點,斷開容量大。當線圈通電時,產生磁場,吸合鐵芯。由鐵芯帶動觸點轉換。外殼采用引進的Combiflex凸出式模數化插入結構。
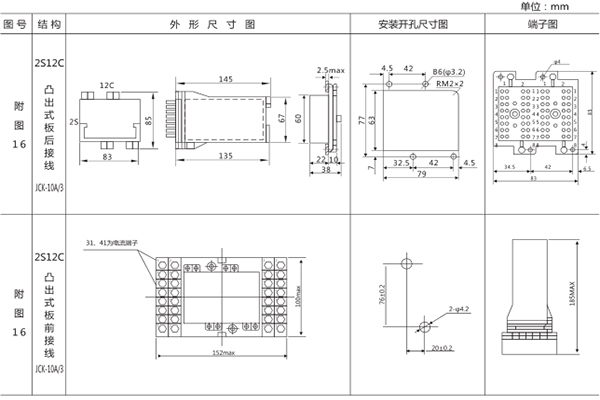
四、RXMH2型大容量繼電器的安裝尺寸
RXMH2采用2S12C外殼,如下圖所示

上海上繼科技有限公司(專注電力保護繼電器生產廠家)銷售熱線:021-57233089 QQ:1932551438
{以上內容僅供參考,上海上繼科技有限公司有最終解釋權}
更多繼電器精彩文章——RXSF1型雙掉牌信號繼電器





